Concours collège du Belvédère

 

lieu: Lausanne

maître d’ouvrage : commune de Lausanne

date : 2018

type : construction scolaire

status : terminé

partenaires : BDSA ingénieurs civils

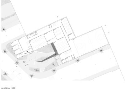
Le vide devient le liant des extensions successives, à la fois sur deux et trois dimensions, il permet d’absorber la pente en proposant des lieux de rencontre ludiques appropriables à tout un chacun

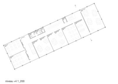
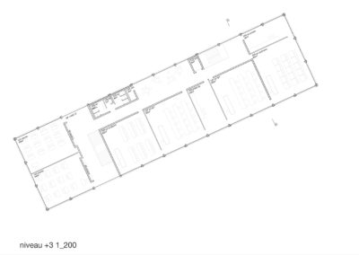
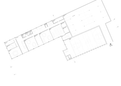
Le projet reprend les codes du complexe des années 50, une barre posée sur un socle comprenant la salle de sport et les services, sur lequel est perché le préau. Un escalier monumental permet de lier les flux des élèves entre l’angle constitué des Avenues du Belvédère et Marc-Dufour au chemin des Croix-Rouges. Cet escalier sert à la fois de transition entre le bas et le haut mais également de préau, il est aménagé en gradins et terrasses afin d’en faire un lieu de vie ludique pour les élèves et promeneurs. Le préau supérieur est prolongé sur le chemin des Croix-Rouges en un espace partagé entre piétons et voitures. Cet espace devient un élément de centralité liant les trois collèges : le Belvédère, les Croix Rouges et la nouvelle extension. Les salles de classes et salles spéciales se trouvent dans la barre posée sur le socle. Toutes les salles bénéficient de lumière naturelle directe. La distribution se fait par un couloir en façade nord, les noyaux de services y sont articulés de manière à favoriser les espaces de rencontre entre élèves. Le socle regroupe les espaces de service ainsi que la salle de sport. Tous les éléments du programme peuvent fonctionner de manière autonome ou comme un seul et même bâtiment lorsque celui-ci est utilisé en mode «jour».