Concours collège du Vélodrome

 

lieu: Lausanne

maître d’ouvrage : commune de Lausanne

date : 2024

type : construction scolaire et installations sportives

status : terminé

Par leurs prolongements extérieurs, tous les locaux du rez-de-chaussée participent à la vie collective et sociale du quartier. En dehors des heures d’ouvertures scolaires, les halls peuvent être isolés lors de l’utilisation par des tiers de manière indépendante.

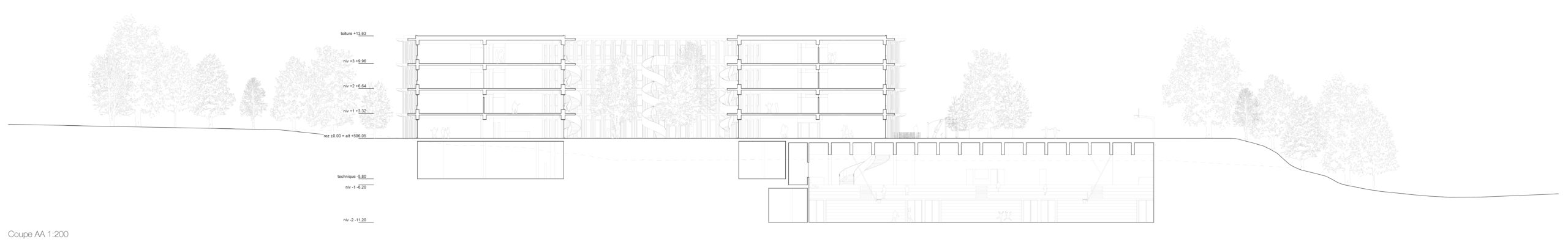
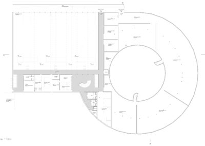
Par sa forme circulaire, le bâtiment se démarque des îlots de logements alentours. Cette forme urbaine en rupture dénote son caractère institutionnel. Implanté dans le parc, il en devient un espace de transition faisant office d’axe de liaison et de distribution. Jouant sur les pleins et les vides, le bâtiment devient partie intégrante du parc. La cour intérieure officie comme préau et espace de distribution pour le site. A l’intérieur, trois halls traversants opèrent la distribution verticale et forment des lieux de rencontre entre le corps enseignant et les élèves. Aux étages, la distribution horizontale s’effectue par un couloir central rythmé par la structure du bâtiment. L’école dans un parc n’est pas simplement une école, elle en devient un lieu d’échange et lieu de vie rassembleur tant au niveau de la mixité sociale que des activités mises à disposition. Les espaces de préaux sont volontairement répartis autour du bâtiment, fragmentés, ouverts et mis à disposition du quartier. Ils offrent ainsi des lieux de détente, de rencontre, d’activités sportives, culturelles, de jeux et de promenade à l’ensemble des utilisateurs et des habitants.