Concours école primaire

 

lieu: Meinier

maître d’ouvrage : commune de Meinier

date : 2017

type : construction scolaire

status : terminé

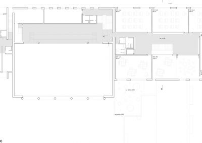
Un volume compact simple qui devient le carrefour du nouveau complexe

L’extension de l’école est un volume compact s’implantant entre le volume de la salle de sport existante et les 4 classes construites en 1989 créant ainsi des liaisons entre les bâtiments. Les trois bâtiments deviennent une école. Cette implantation permet également de dégager un maximum de préau et surfaces extérieures. De par son implantation, le nouveau programme n’entrave pas les circulations entre les différents espaces extérieurs. Les salles de classes s’implantent en périphérie d’un hall central favorisant ainsi la lumière naturelle dans les salles de classes et une rationalité du projet. La salle d’arts visuels et la salle de jeux, bénéficient en plus des ouvertures de façade, d’un éclairage naturel depuis le hall grâce à la verrière en toiture. Un noyau de services accessible depuis le hall prend place côté mur mitoyen avec la salle de sport. Des liaisons sont faites entre l’école de 1989 et la salle de sport. Les salles de cours occupent les deux niveaux sur rez-de-chaussée. Le rez est dédié aux locaux publics, administration, salles de sociétés locales, salle de soutien.