Concours EMS Eclépens
lieu: Eclépens
maître d’ouvrage : fondation Saphir
date : 2024
type : établissement médico social
status : terminé
Le bâtiment propose un lieu de vie offrant des espaces de liberté pouvant être encadrés prenant en compte la perte de repères liée aux pathologies de démence ou de désorientation
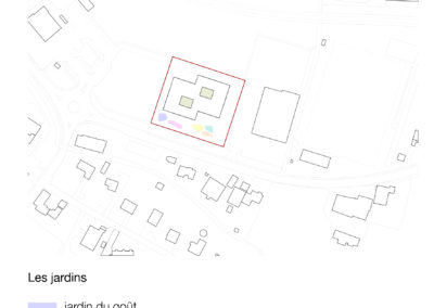
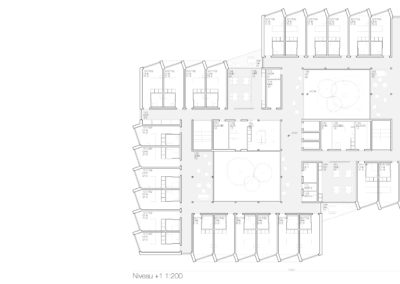
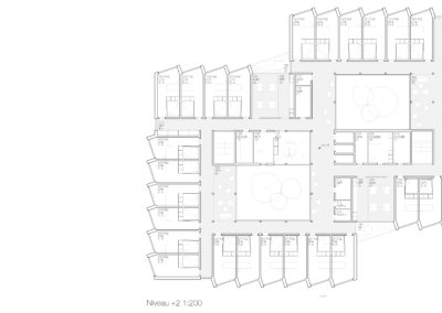
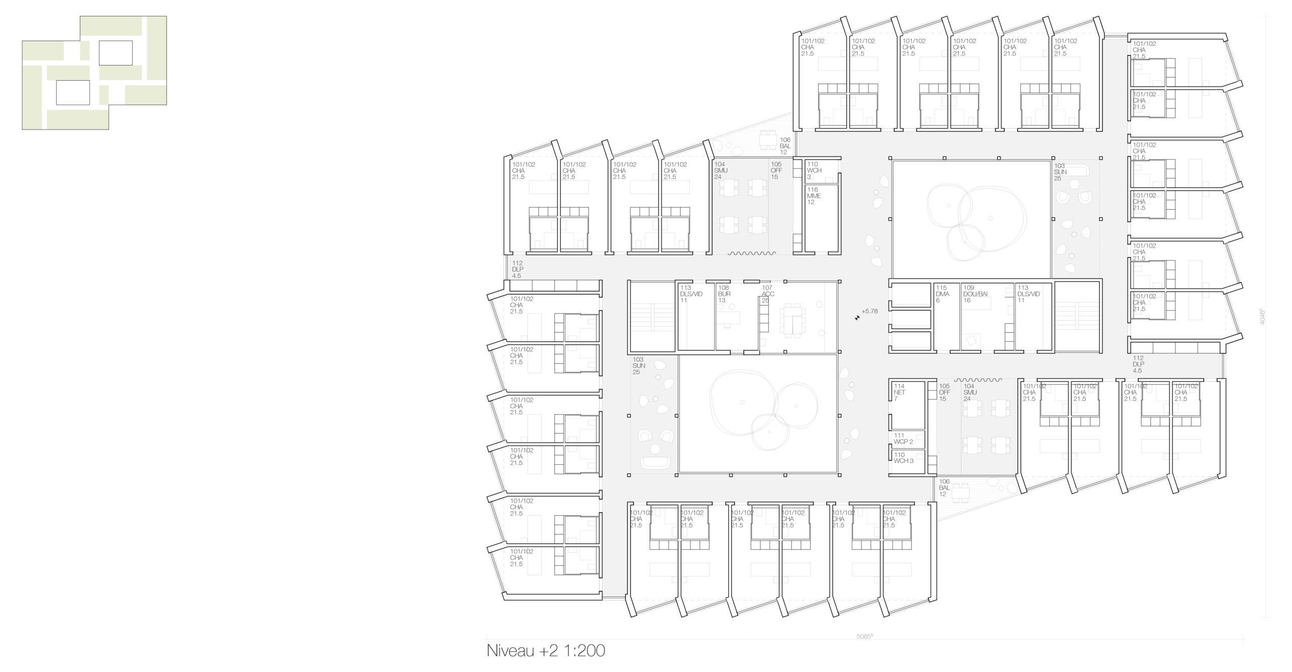
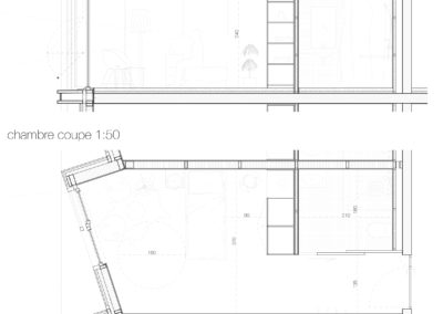
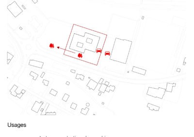
Le bâtiment est composé de deux volumes emboités sur l’angle. La compacité ainsi obtenue et le gabarit modeste (R+2) assurent une bonne intégration à l’échelle villageoise. Le concept paysager propose la création d’un parc sur le thème des cinq sens. Ces jardins sont séparés et reliés entre eux par une boucle permettant la déambulation au sein du parc. Aux intersections les chemins se dilatent afin de proposer des espaces de rencontre. Les éléments publics du programme sont disposés au rez-de-chaussée et profitent d’un positionnement de plain-pied en continuité avec les espaces extérieurs. Les deux niveaux supérieurs regroupent les unités de vie. Elles sont articulées autour de deux patios garantissant un apport de lumière naturelle au sein du bâtiment tout en favorisant la déambulation et le repérage des résidents. La position centrale du local d’accompagnement permet un contrôle des accès et de rationaliser les déplacements du personnel soignant. En bout de chambre, les façades sont biaisées afin d’offrir un espace séjour plus généreux.
