Concours espace multifonctions Beausobre
3ème tour

lieu: Morges

maître d’ouvrage : commune de Morges

date : 2017

type : centre multifonctions

status : terminé

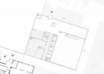
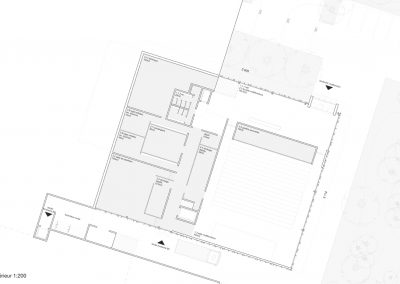
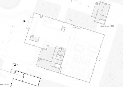
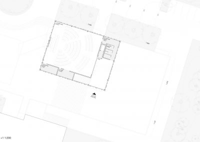
En plus d’offrir des espaces intérieurs, par ses toitures le bâtiment offre gratuitement des espaces extérieurs accessibles à toutes et tous et tout au long de l’année

Le bâtiment assume le rapport à la pente ainsi que les contraintes réglementaires. Le travail le long de la pente et en coupe permet au programme de s’inscrire naturellement dans le paysage dégageant ainsi des espaces collectifs extérieurs. Par son insertion dans le tissu existant, il crée une place centrale occupée par le couvert fédérant les programmes des bâtiments BIII, BIV et BV. Le nouveau volume créé propose un espace collectif surélevé de la place principale pouvant accueillir des manifestations publiques extérieures tout en profitant des infrastructures intérieures du bâtiment. L’espace de liaison entre la place centrale et l’espace en toiture est traité comme un théâtre extérieur permettant le déroulement de représentations en plein air. L’accès principal se trouve directement au niveau de la place centrale côté Ouest tandis que les accès de livraison pour le bâtiment BV et BIII se font depuis l’Est de manière à éviter les croisements de flux entre piétons et véhicules. La place centrale est uniquement accessible aux piétons. Des liaisons couvertes depuis les différents bâtiments sont créées permettant de rejoindre le couvert à l’abri des intempéries.