Concours transformation école des Sablons en auberge de jeunesse

 

lieu: Neuchâtel

maître d’ouvrage : commune de Neuchâtel

date : 2019

type : hébergement

status : terminé

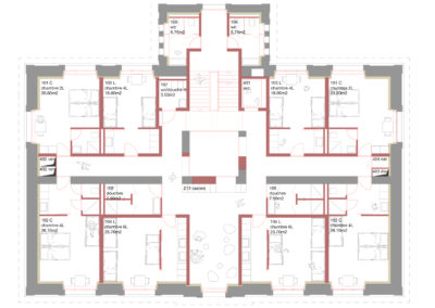
Réaffecter l’existant et lui redonner vie

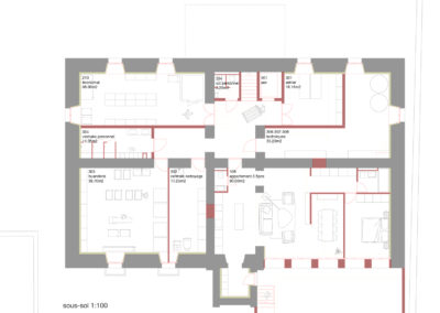
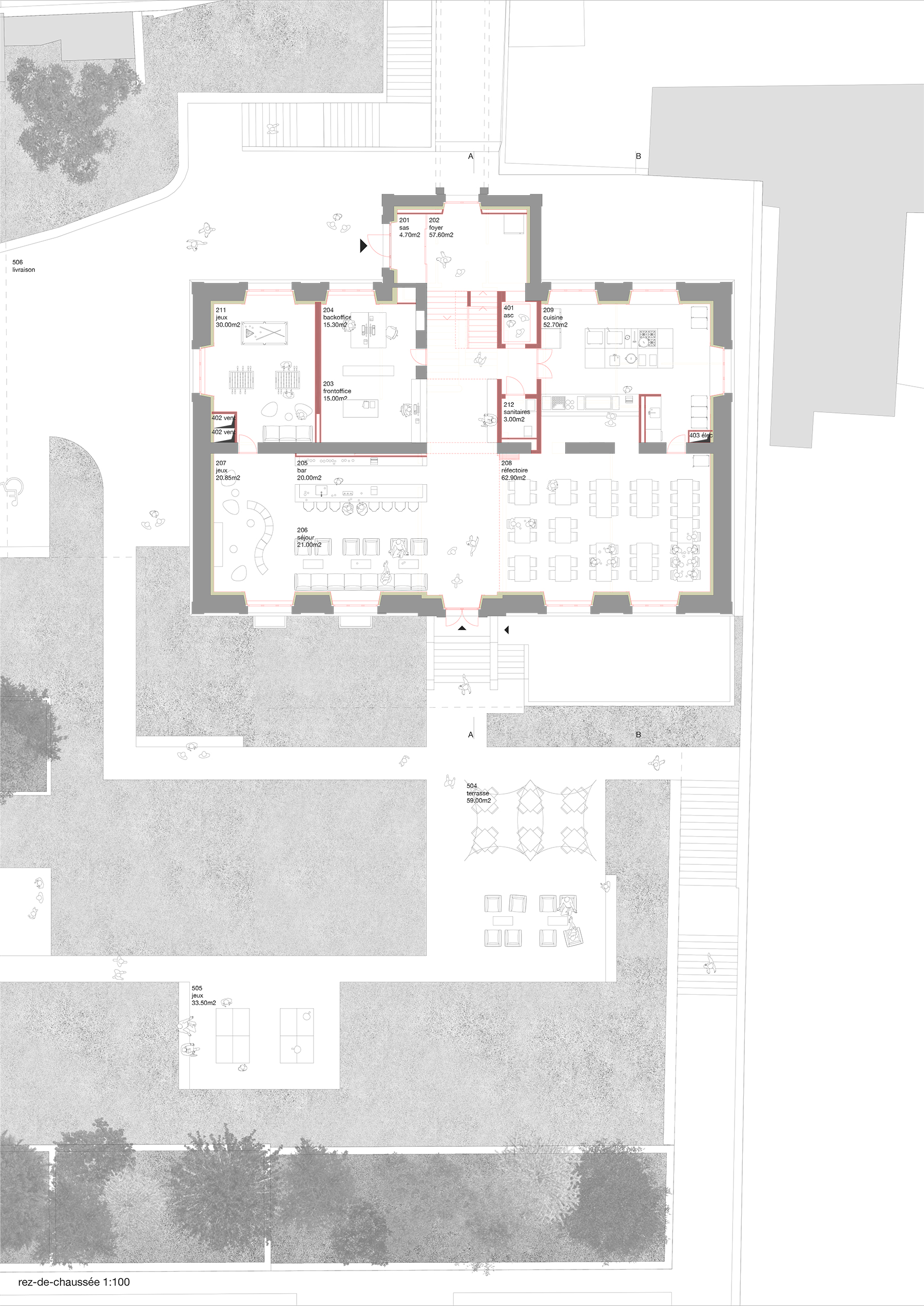
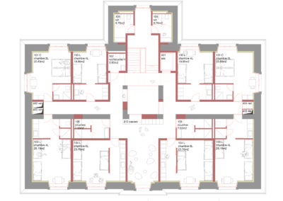
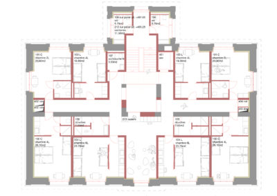
Le projet prend le parti de faire entrer la lumière au centre du bâtiment par la création d’un atrium central regroupant les circulations horizontales et verticales. Il permet de favoriser les échanges par l’intermédiaire de jeux de vues créés par les fenêtres intérieures et les zones de rencontre. Le projet garde la trace des structures existantes en renforçant l’axe nord-sud propre au plan initial et conserve la volumétrie du bâtiment existant. La toiture se pare d’une couverture en cuivre pour démarquer le caractère spécifique du type d’ouvrage en rapport avec les bâtiments avoisinants. La couleur cuivre est là pour rappeler la couleur rouge orangée des toitures en terre cuite des bâtiments du quartier du Sablon. Dans les étages les services sont regroupés au centre en formant des noyaux. Outre le fait de rationaliser les gaines techniques, ce dispositif permet de créer une zone « tampon », semi-privée entre le couloir et la chambre, garantissant ainsi une certaine intimité lors du change et de la toilette.  Les aménagements extérieurs s’inscrivent dans un esprit de parc sur un socle rappelant la topographie en murs de vignes du quartier.