Immeuble de logements

 

lieu: Montreux

maître d’ouvrage : privé

date : 2019

type : habitat collectif

status : en cours

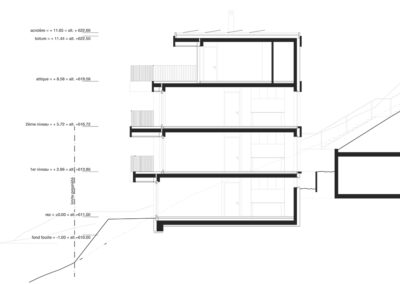
Un volume simple intégré en forte pente dialoguant avec le paysage

Le volume simple et compact s’insère dans un terrain en forte pente bénéficiant ainsi d’une vue sur le lac Léman et les alpes caractéristique de la région Montreusienne.
Malgré une base règlementaire contraignante favorisant une seule et même orientation, le projet tire parti du maximum de ses capacités en créant des appartements orientés sur 3 faces favorisant ainsi les vues et la lumière naturelle selon les orientations.
Les zones jour traversantes permettent une flexibilité dans les aménagements et les appropriations des espaces tout en favorisant les jeux de vues. L’intégration des balcons toute en courbes vient animer la façade Sud-Ouest en rappelant les vagues du lac et les coteaux des hauts de Montreux.