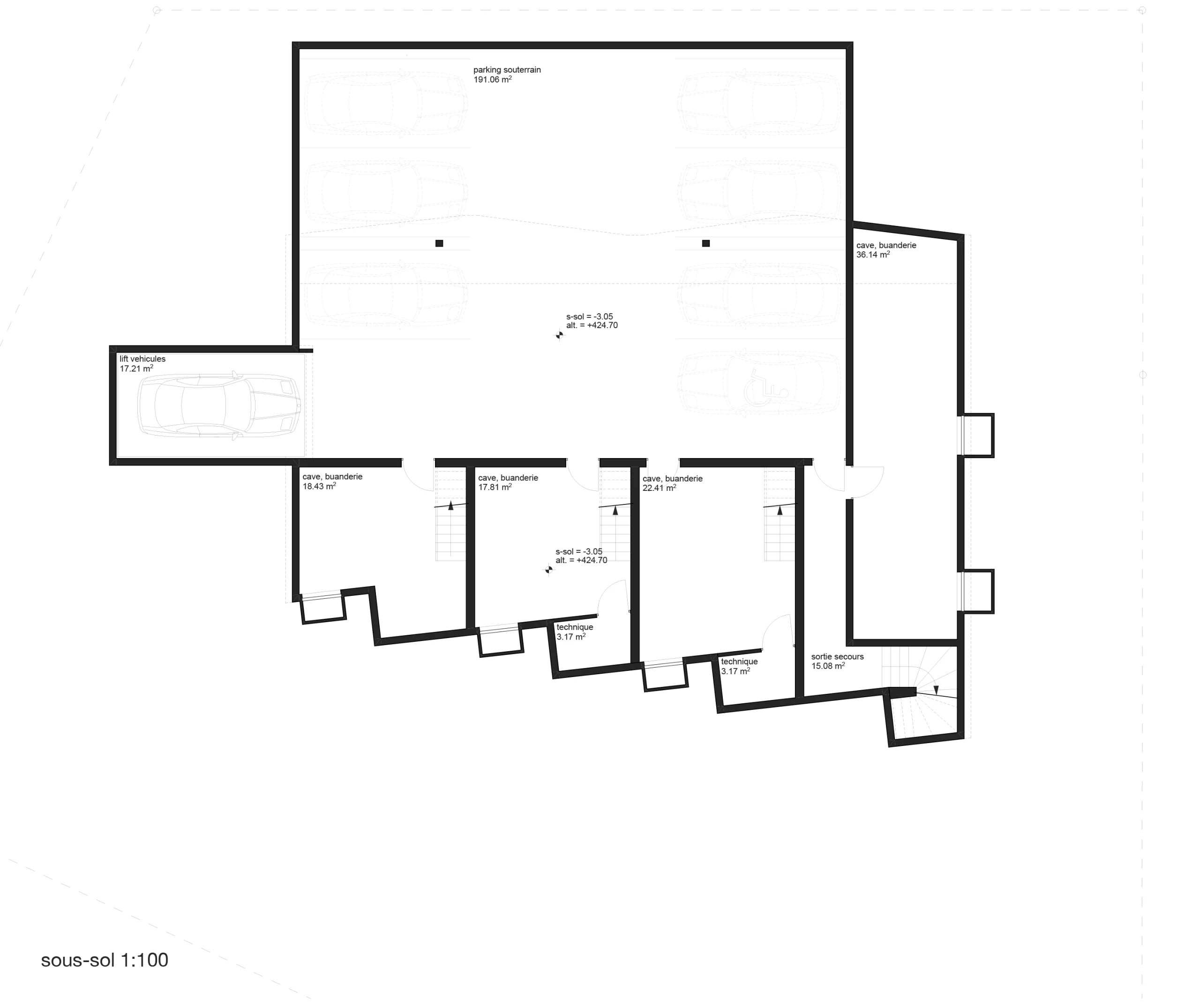
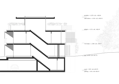
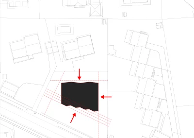
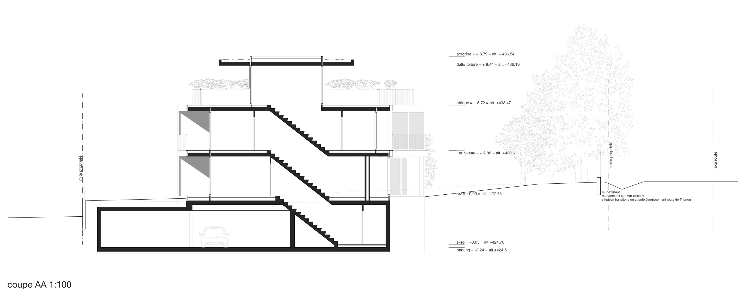
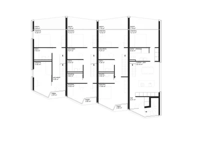
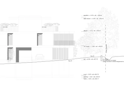
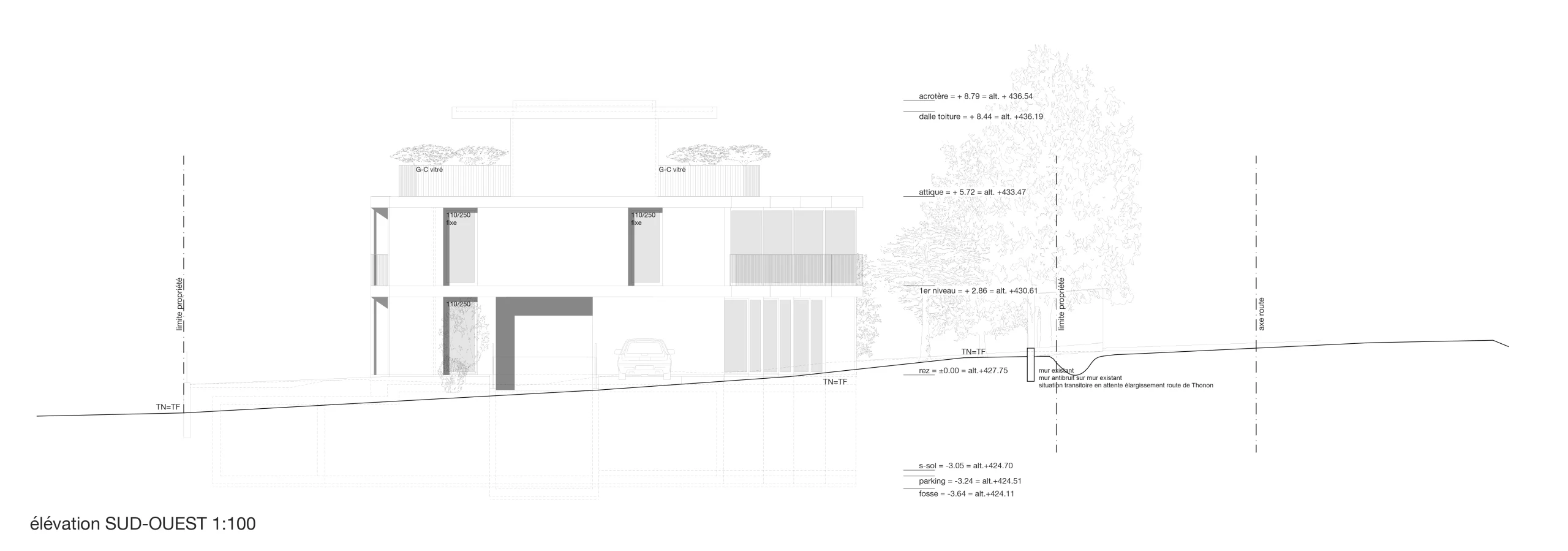
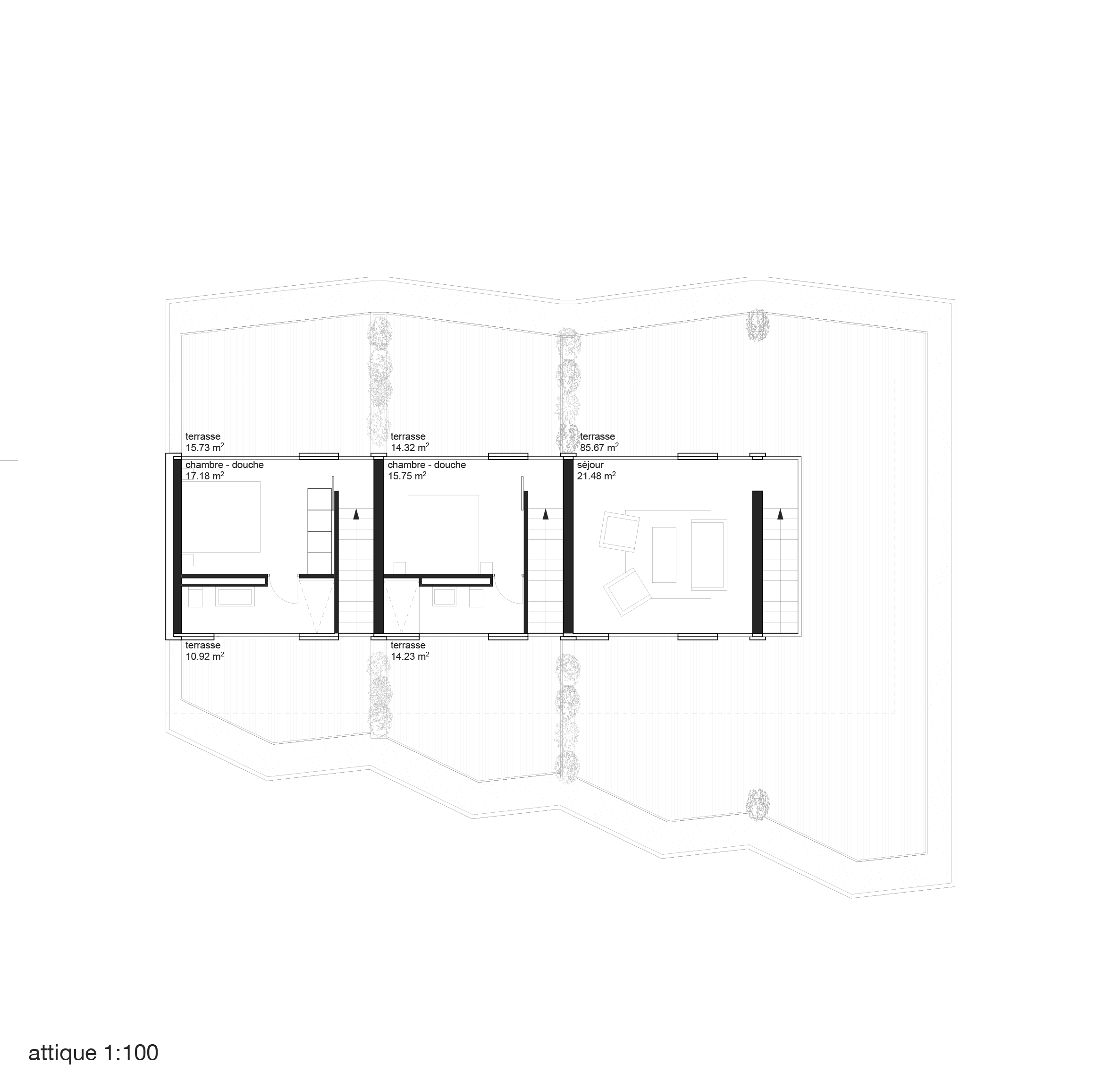
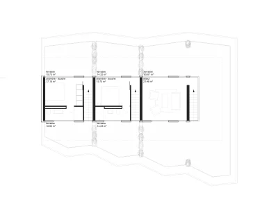
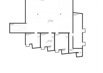
L’implantation du bâtiment reprend les orientations majoritaires du tissu bâti environnant à l’échelle du petit territoire. Il crée un élément charnière effectuant la transition entre un axe de communication principal et la zone résidentielle. Les lots sont organisés sur 2 niveaux + attique en 4 lames verticales accolées, sorte de townhouses, et assument le milieu périurbain dans lequel ils s’inscrivent. Le choix d’une structure par lames latérales portantes et l’organisation intérieure avec les noyaux et circulations au centre permettent d’assurer une flexibilité dans l’aménagement intérieur. Les angles et renfoncements des façades ont pour but d’éviter la vision d’un élément linéaire de type barre d’immeuble en créant des ombres et des animations tout en assumant la connotation hybride de ce type de construction, villa-immeuble ou maison de ville. Ils effectuent la transition avec la zone résidentielle. Leur fonction est de limiter la réverbération des nuisances liées au bruit routier de la route de Thonon telle que pourrait l’être une surface linéaire en mur continu.