Concours transformation banque Raiffeisen
1er prix

 

lieu: La Sarraz

maître d’ouvrage : banque Raiffeisen

date : 2009-2011

type : commercial | administratif

status : terminé

partenaires : Arck architecture

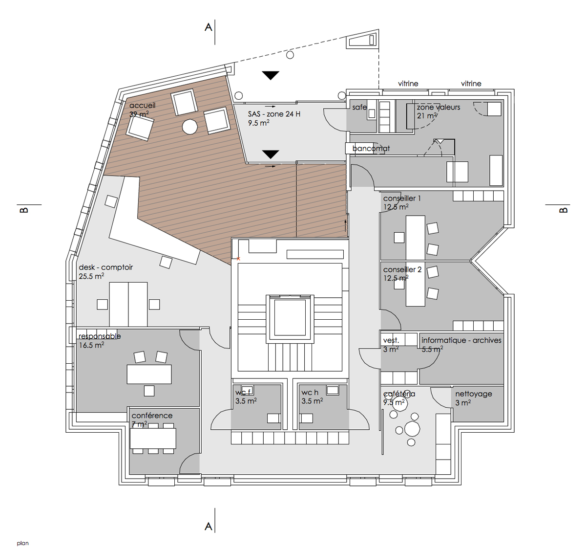
Le projet tire parti des contraintes de l’existant pour optimiser l’expérience de l’utilisateur en hiérarchisant la spacialité sans prétériter la fluidité.

Fortement contraint par le noyau existant, le projet assume complètement cette centralité en organisant une circulation périphérique autour de cet élément, distribuant tous les espaces du programme. par sa teinte de couleur rouge faisant référence au logo Raiffeisen et son éclairage indirect intégré dans le faux-plafond, il en devient l’élément central du projet. Dès l’entrée, ce mur se fait remarquer. à son arrivée le visiteur découvre sur la première face une image de la Sarraz, lui indiquant qu’il est dans « sa » banque et non dans une succursale identique à toutes les autres. Inspiré de la géométrie du bâtiment existant, l’espace accueil-guichets montre son unicité et son caractère public par sa géométrie non-orthogonale. Les activités s’affirment en plan, orthogonalité et rigueur par les locaux de travail et de services, dilatations et convivialité pour les espaces voués au public. La circulation, périphérique autour du noyau central, permet un fonctionnement en interne pour les collaborateurs de la banque sans croiser les flux des clients et permet un meilleur contrôle des déplacements.