Transformation maison vigneronne

 

lieu: Chenaux, Lavaux

maître d’ouvrage : privé

date : 2011-2012

type : habitat individuel

status : terminé

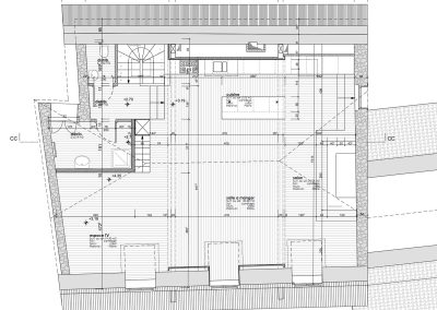
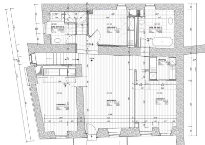
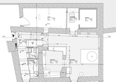
Les problèmes structurels ont étés mis au coeur du projet, redéfinissant les espaces intérieurs et mettant en valeur le patrimoine existant perdu au fil des transformations successives.

Cette ancienne maison vigneronne située dans le Lavaux date des années 1750, le bâtiment a subi diverses transformations et renforts de fortune au fil du temps. Après un premier constat visuel il apparaît que le bâtiment fait l’objet de gros problèmes structurels. Si l’enveloppe semble en bon état, les plancher eux se sont totalement affaissé de plusieurs centimètres. La faute à un problème de descente de charges non linéaire, en effet sur les quatre poteaux soutenant la charpente, un seul repose sur un mur porteur, ceci ayant pour effet une instabilité sur l’ensemble des plancher de la maison. Le parti pris a été de vider totalement la maison de ses planchers existants et de travailler les nouveaux plancher en bois préfabriqué afin de conserver l’essence originelle de cette maison mais aussi pour ses qualités de facilité et rapidité de mise en œuvre et adaptations sur place. Le projet fait directement référence aux problème structurel il s’agit par l’intermédiaire de deux arches en bois de redistribuer les charges de la charpente sur les murs périphériques. Ces deux arches vont créer une sorte d’anneau délimitant la zone cuisine repas. Cet anneau est accentué par la pose d’un parquet au sol murs et plafonds allant dans le sens des charges alors quand sa périphérie le parquet est posé en sens contraire.