Habitation individuelle

 

lieu: Collonges-Bellerive

maître d’ouvrage : privé

date : 2013-2017

type : habitat individuel

status : terminé

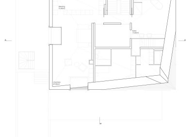
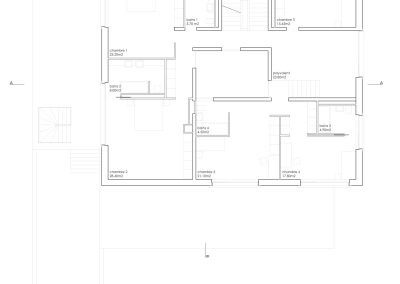
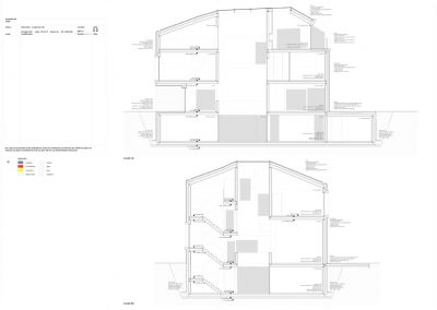
D’apparence simple en extérieur, le volume renferme une spacialité multiple et complexe qui se découvre au long du parcours et selon l’évolution de la lumière naturelle

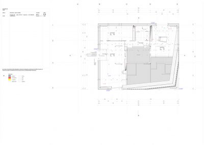
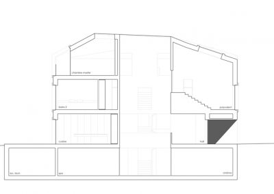
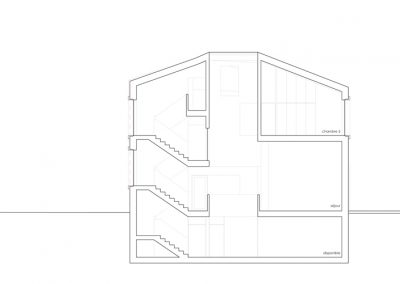
Situé sur une parcelle proche de la forêt avec un tissu urbain de faible densité, le projet s’implante en bordure du terrain afin de bénéficier d’un maximum d’espace extérieur disponible. Compte tenu de la forte présence de la forêt, il s’agit de créer un bâtiment qui soit en relation avec cette dernière, comme s’il avait été toujours présent à cette place, en créant un élément minéral, sorte de rocher en bordure de forêt, composé d’un seul et même matériau : la pierre. D’apparence très simple à l’extérieur, le projet renferme en ses murs, une spatialité complexe par la création d’un atrium central regroupant tous les espaces et la création de demi-niveaux. L’atrium fonctionne en tant qu’apport supplémentaire de lumière mais sert avant tout à lier les différents niveaux du bâtiment, allant du sous-sol jusqu’aux combles. La circulation horizontale et verticale est organisée autour de cet atrium et permet des jeux de vues à travers celui-ci. Ce dernier permet également au bâtiment de profiter d’une ventilation naturelle, sorte de cheminée d’air frais permettant le renouvellement d’air.